MAYA RESTORASYON  UYG.  MİMARLIK
İNŞ.   SAN.   TUR.   TİC.   LTD.   ŞTİ.   

     

         
            ANA SAYFA HAKKIMIZDA HABERLER UYGULAMALAR İLETİŞİM
                     
     KAMU YAPILARI    
     KONAKLAMA ve TURİZM    
   SULTANAHMET, BUTİK OTEL PROJESİ VE
  UYGULAMASI
   
   SOCHI, SBERBANK HOTEL    
   SOCHI, SOLIS HOTEL 2    
   SOCHI, SOLIS HOTEL 5    
   SOCHI, SOLIS HOTEL 6    
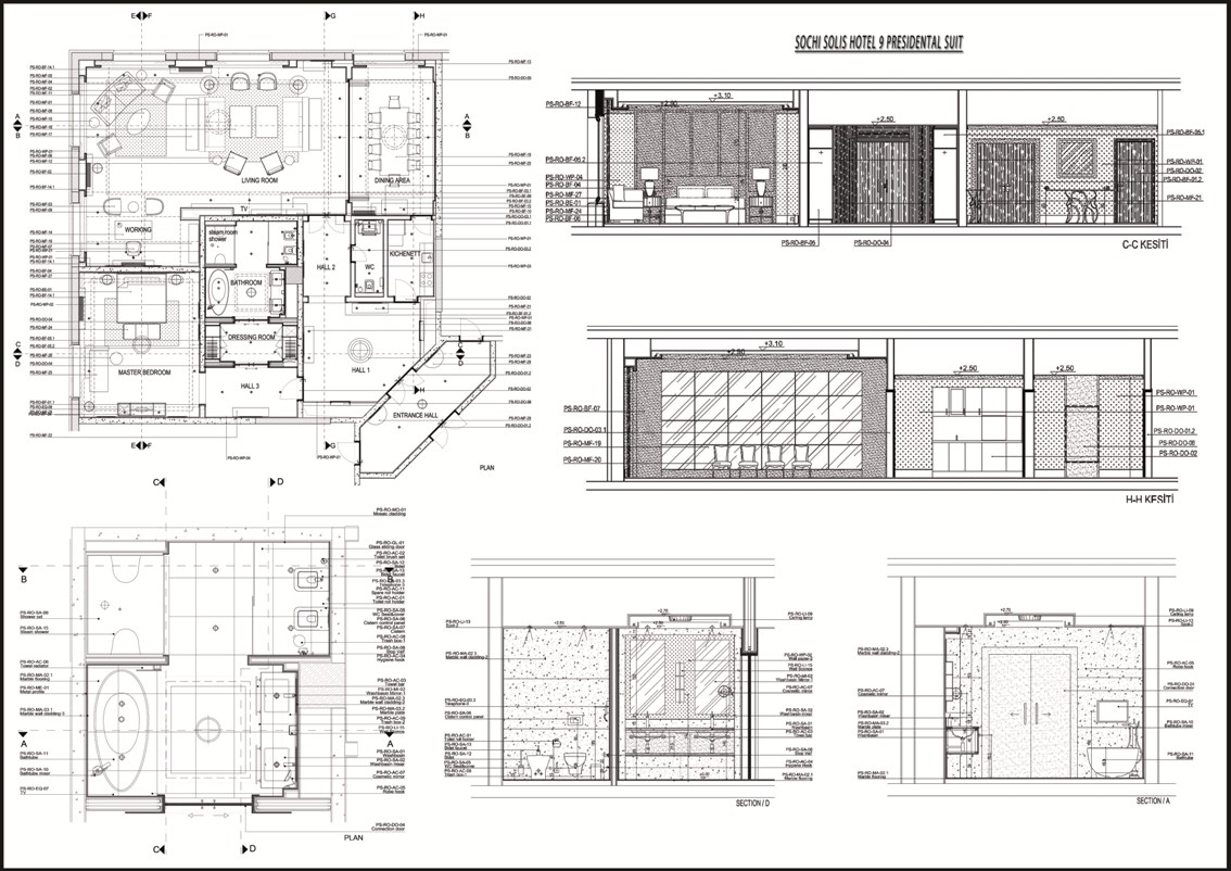
     SOCHI, SOLIS HOTEL 9  
   FLORYA, ELITE WORLD BUSINESS HOTEL    
   LEVENT, ÖZDİLEK OTEL    
   BELEK, CARYA GOLF RESORT    
 

 KOBLENZ, G-HOTEL İÇ MEKAN UYG. PROJESİ

   
 

 KAYSERİ, TALAS SEYİR TERASI VE BUTİK OTEL

   
     İŞ MERKEZİ ve İDARİ BİNA    
     REZİDANS ve KONUT    
     RÖLÖVE, RESTİTÜSYON, 
   RESTORASYON 
   
     İÇ MEKAN DÜZENLEMELERİ       
     YARIŞMALAR    
           
           
           
                 
Copyright © 2011 Maya Mimar. All rights reserved